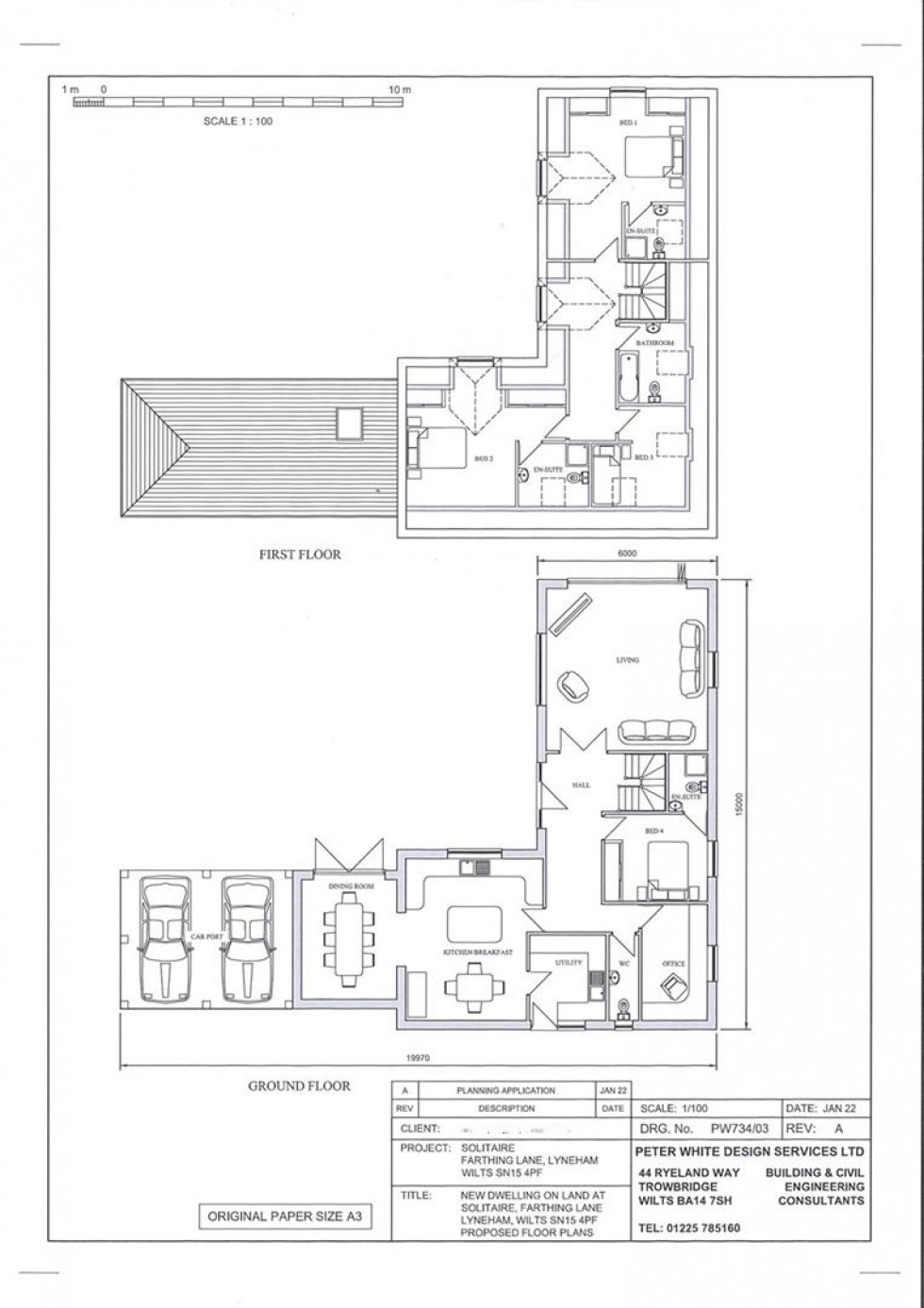
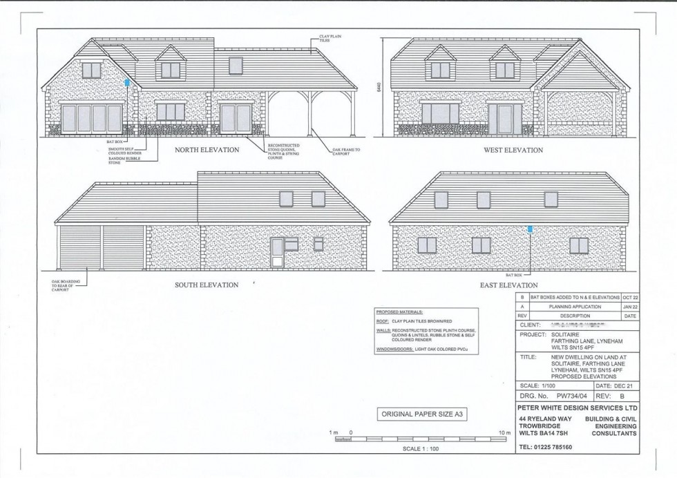
Offering a rare opportunity in the semi-rural setting within the village of Lyneham, this 3-bedroom detached chalet-style bungalow sits on a generous 0.55-acre plot and comes with APPROVED PLANNING...
Viewings are by appointment only through Alan Hawkins Property Sales.
Tel: 01793 840222
Tax Band E For year 2025/26 = £2815.79
For information on tax banding and rates, please call Wiltshire Council, Monkton Park. Chippenham. Wiltshire. SN15 1ER. Tel: 0300 456 0109
Planning approved 26th October 2022 - New detached dwelling on land at 'Solitaire, Farthing Lane'
Application number - PL/2022/01451